Residences at The Point

Precios desde

$106.855

Visión general

Fecha de entrega:

Segundo Semestre 2027
En planos
Puembo

Descripción del proyecto inmobiliario

Residences at The Point es un proyecto de Terrenos Exclusivos en Puembo diseñado para quienes buscan invertir con visión, vivir con estilo y asegurar su patrimonio.

Ubicado en una zona estratégica con conexión directa a Ruta Viva y Cumbayá, este desarrollo ofrece el equilibrio perfecto entre naturaleza, privacidad y conectividad, en uno de los sectores con mayor crecimiento y plusvalía del valle.

Se trata de una urbanización privada de alto nivel, conformada por solo 64 Terrenos Exclusivos, lo que garantiza un entorno selecto, seguro y de baja densidad.

Aquí no solo adquieres un terreno, inviertes en calidad de vida y valorización a largo plazo:
Seguridad 24/7 y control de accesos
Amenidades tipo club para toda la familia
Infraestructura premium que respalda tu inversión
Entorno natural que eleva tu estilo de vida

Residences at The Point no es solo un proyecto, es el punto exacto donde la exclusividad se convierte en inversión inteligente.

LUXURY LIVING: Donde la naturaleza y la comodidad convergen

Residences at The Point redefine el concepto de inversión inmobiliaria en Puembo a través de una propuesta única de Terrenos Exclusivos, pensada para quienes entienden que la ubicación y el entorno determinan el valor del futuro.

Este proyecto residencial privado está conformado por únicamente 64 Terrenos Exclusivos, creando una comunidad selecta donde la privacidad, seguridad y valorización son el estándar. Aquí, cada espacio ha sido concebido para desarrollar viviendas de alto nivel en un entorno que combina diseño, naturaleza y proyección patrimonial.

Ubicación estratégica que potencia tu inversión

Ubicado en una nueva centralidad del valle, el proyecto conecta de manera ágil con Cumbayá, Ruta Viva y los principales ejes de Quito, permitiendo optimizar tu tiempo y mejorar tu calidad de vida.

Vivir en Puembo hoy es anticiparse al crecimiento urbano, asegurando tu inversión en una zona que continúa consolidándose como una de las más demandadas y con mayor plusvalía.

Aquí encuentras el equilibrio perfecto:
tranquilidad, aire puro y conectividad real.

Un entorno diseñado para un estilo de vida superior

Más que Terrenos Exclusivos, este proyecto ofrece una experiencia integral que transforma tu día a día.

Disfruta de amenidades diseñadas para elevar tu calidad de vida:
✔ Club House
✔ Piscina recreativa
✔ Gimnasio equipado
✔ Zona BBQ y lounge
✔ Business Center / Coworking
✔ Áreas verdes amplias
✔ Zona pet

Cada espacio ha sido pensado para compartir, disfrutar y crear experiencias memorables dentro de un entorno seguro y exclusivo.

Seguridad, respaldo y valorización

El proyecto incorpora infraestructura y tecnología de alto nivel que garantizan tranquilidad y protección de tu inversión:
✔ Guardianía 24/7
✔ Control de accesos
✔ Cámaras de seguridad
✔ Iluminación inteligente
✔ Calles adoquinadas y acabados premium

Todo esto asegura un entorno ordenado, seguro y preparado para mantener y aumentar su valor con el tiempo.

Invierte en Terrenos Exclusivos, construye legado

Adquirir un terreno aquí no es una decisión común, es una estrategia inteligente.

Residences at The Point te ofrece la oportunidad de formar parte de un proyecto donde convergen:
✔ Exclusividad
✔ Ubicación privilegiada
✔ Crecimiento urbano
✔ Alta valorización

Aquí no solo construyes una casa… construyes futuro, patrimonio y calidad de vida.

Ubicación

Amenidades

Area BBQ Área Gourmet Áreas Verdes Business Center Cabana Seating Cine Co-working Game Room Gimnasio Kids Park Lounge / Lounge Bar Pet space Piscina Sala TV

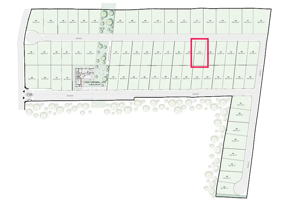
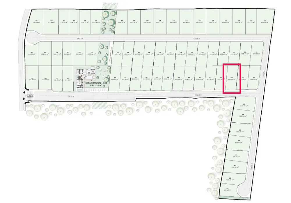
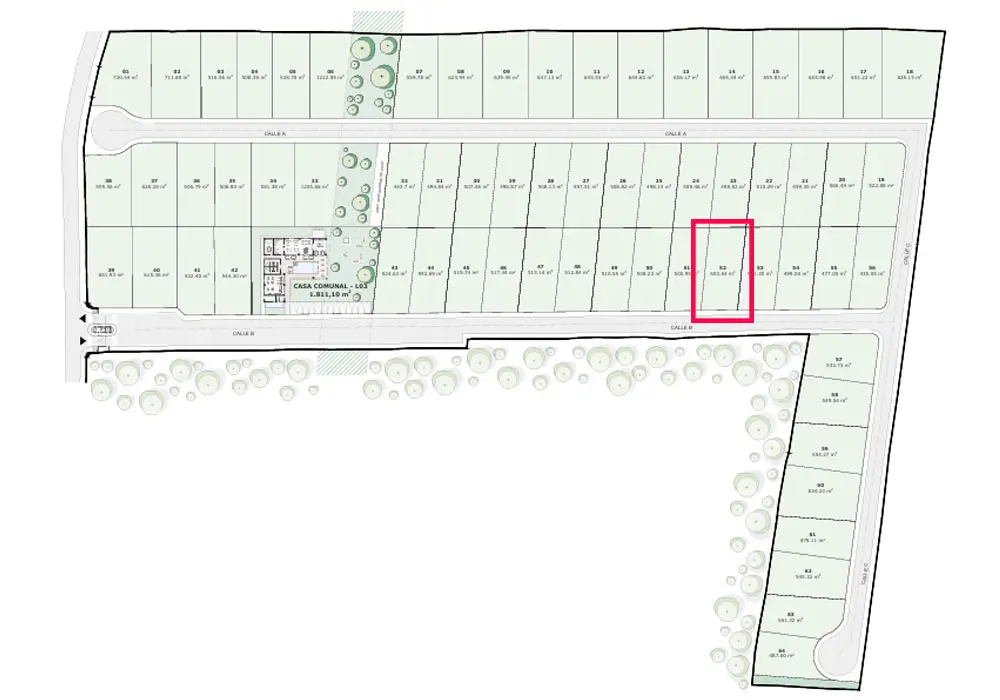
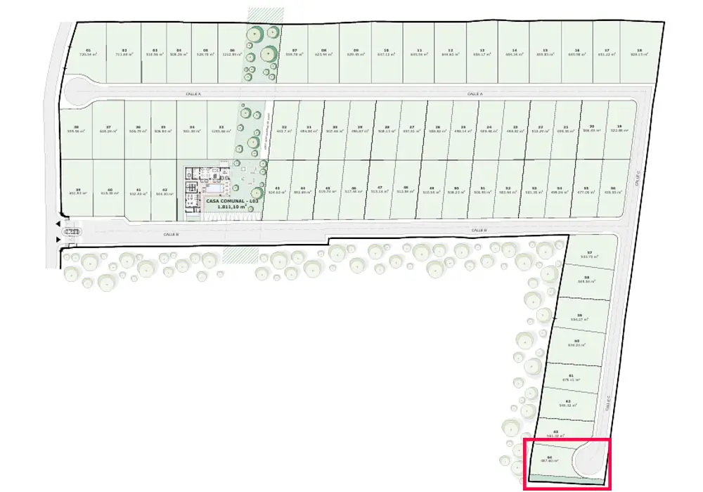
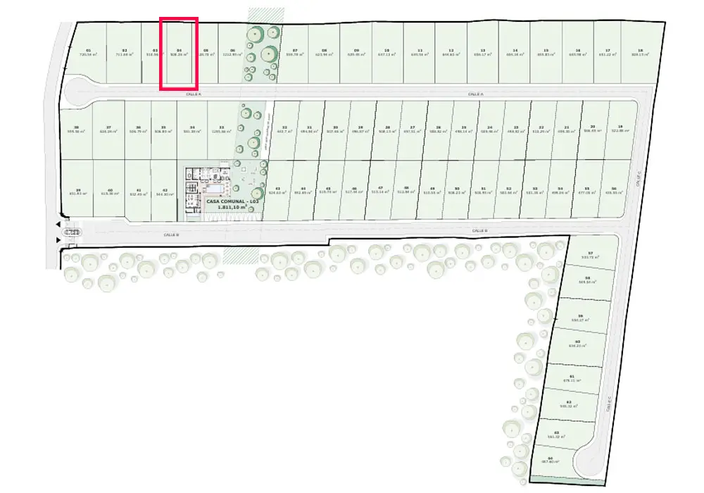
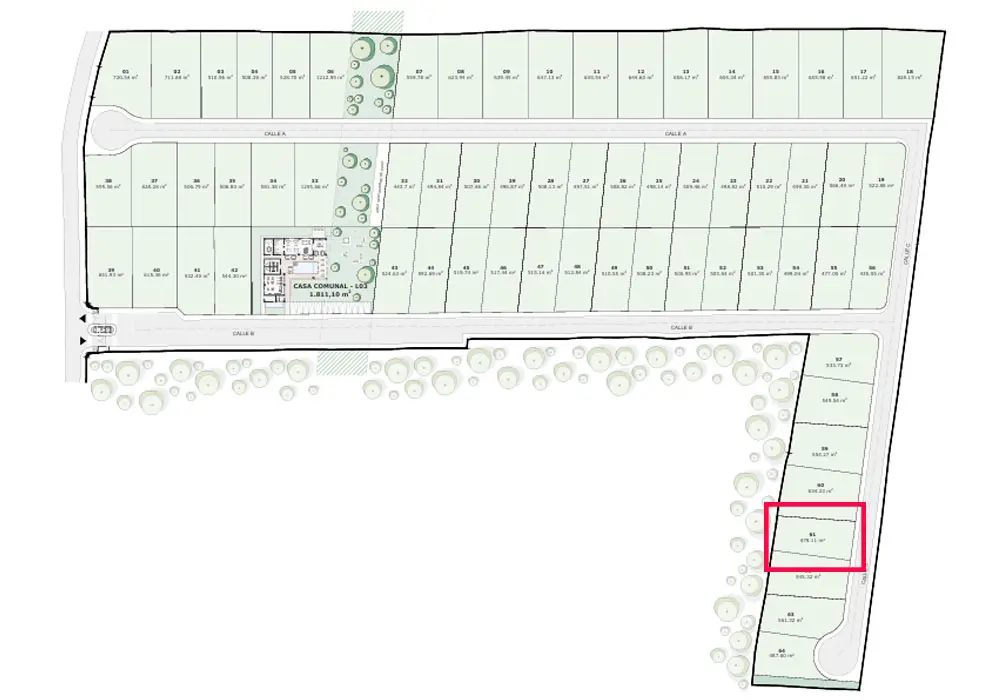
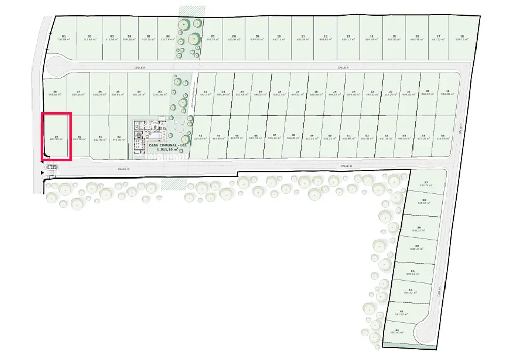
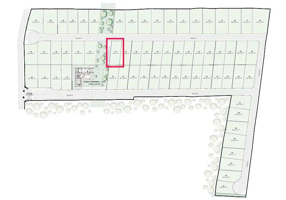
Unidades disponibles

Terreno exclusivo de 720.54m2

Precio: $193.580

Área: 720.54 m²

Parqueaderos: No incluye - Se compra por separado

Área del balcón: No incluye

Terraza/jardín: No incluye

Terreno exclusivo de 559.78m2

Precio: $150.390

Área: 559.78 m²

Parqueaderos: No incluye - Se compra por separado

Área del balcón: No incluye

Terraza/jardín: No incluye

Terreno exclusivo de 711.68m2

Precio: $191.200

Área: 711.68 m²

Parqueaderos: No incluye - Se compra por separado

Área del balcón: No incluye

Terraza/jardín: No incluye

Terreno exclusivo de 528.70m2

Precio: $135.009

Área: 528.7 m²

Parqueaderos: No incluye - Se compra por separado

Área del balcón: No incluye

Terraza/jardín: No incluye

Terreno exclusivo de 510.29m2

Precio: $152.969

Área: 510.29 m²

Parqueaderos: No incluye - Se compra por separado

Área del balcón: No incluye

Terraza/jardín: No incluye

Terreno exclusivo de 508.82m2

Precio: $152.528

Área: 508.82 m²

Parqueaderos: No incluye - Se compra por separado

Área del balcón: No incluye

Terraza/jardín: No incluye

Terreno exclusivo de 544.30m2

Precio: $146.232

Área: 544.3 m²

Parqueaderos: No incluye - Se compra por separado

Área del balcón: No incluye

Terraza/jardín: No incluye

Terreno exclusivo de 524.63m2

Precio: $140.947

Área: 524.63 m²

Parqueaderos: No incluye - Se compra por separado

Área del balcón: No incluye

Terraza/jardín: No incluye

Terreno exclusivo de 517.44m2

Precio: $146.332

Área: 517.44 m²

Parqueaderos: No incluye - Se compra por separado

Área del balcón: No incluye

Terraza/jardín: No incluye

Terreno exclusivo de 512.84m2

Precio: $145.031

Área: 512.84 m²

Parqueaderos: No incluye - Se compra por separado

Área del balcón: No incluye

Terraza/jardín: No incluye

Terreno exclusivo de 435.55m2

Precio: $121.515

Área: 435.55 m²

Parqueaderos: No incluye - Se compra por separado

Área del balcón: No incluye

Terraza/jardín: No incluye

Terreno exclusivo de 533.73m2

Precio: $159.994

Área: 533.73 m²

Parqueaderos: No incluye - Se compra por separado

Área del balcón: No incluye

Terraza/jardín: No incluye

Terreno exclusivo de 634.23m2

Precio: $190.122

Área: 634.23 m²

Parqueaderos: No incluye - Se compra por separado

Área del balcón: No incluye

Terraza/jardín: No incluye

Terreno exclusivo de 545.32m2

Precio: $163.469

Área: 545.32 m²

Parqueaderos: No incluye - Se compra por separado

Área del balcón: No incluye

Terraza/jardín: No incluye

Terreno exclusivo de 647.13m2

Precio: $183.008

Área: 647.13 m²

Parqueaderos: No incluye - Se compra por separado

Área del balcón: No incluye

Terraza/jardín: No incluye

Terreno exclusivo de 654.34m2

Precio: $185.047

Área: 654.34 m²

Parqueaderos: No incluye - Se compra por separado

Área del balcón: No incluye

Terraza/jardín: No incluye

Terreno exclusivo de 655.83m2

Precio: $176.287

Área: 655.83 m²

Parqueaderos: No incluye - Se compra por separado

Área del balcón: No incluye

Terraza/jardín: No incluye

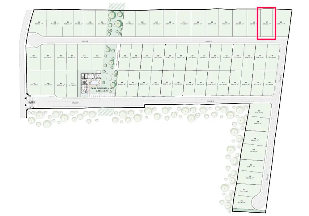
Terreno exclusivo de 651.22m2

Precio: $184.165

Área: 651.22 m²

Parqueaderos: No incluye - Se compra por separado

Área del balcón: No incluye

Terraza/jardín: No incluye

Terreno exclusivo de 522.88m2

Precio: $156.743

Área: 522.88 m²

Parqueaderos: No incluye - Se compra por separado

Área del balcón: No incluye

Terraza/jardín: No incluye

Terreno exclusivo de 566.49m2

Precio: $169.816

Área: 566.49 m²

Parqueaderos: No incluye - Se compra por separado

Área del balcón: No incluye

Terraza/jardín: No incluye

Terreno exclusivo de 506.79m2

Precio: $143.320

Área: 506.79 m²

Parqueaderos: No incluye - Se compra por separado

Área del balcón: No incluye

Terraza/jardín: No incluye

Terreno exclusivo de 628.28m2

Precio: $168.794

Área: 628.28 m²

Parqueaderos: No incluye - Se compra por separado

Área del balcón: No incluye

Terraza/jardín: No incluye

Terreno exclusivo de 615.36m2

Precio: $165.323

Área: 615.36 m²

Parqueaderos: No incluye - Se compra por separado

Área del balcón: No incluye

Terraza/jardín: No incluye

Terreno exclusivo de 592.69m2

Precio: $167.613

Área: 592.69 m²

Parqueaderos: No incluye - Se compra por separado

Área del balcón: No incluye

Terraza/jardín: No incluye

Terreno exclusivo de 519.74m2

Precio: $146.982

Área: 519.74 m²

Parqueaderos: No incluye - Se compra por separado

Área del balcón: No incluye

Terraza/jardín: No incluye

Terreno exclusivo de 508.23m2

Precio: $143.727

Área: 508.23 m²

Parqueaderos: No incluye - Se compra por separado

Área del balcón: No incluye

Terraza/jardín: No incluye

Terreno exclusivo de 501.35m2

Precio: $134.763

Área: 501.35 m²

Parqueaderos: No incluye - Se compra por separado

Área del balcón: No incluye

Terraza/jardín: No incluye

Terreno exclusivo de 549.54m2

Precio: $164.735

Área: 549.54 m²

Parqueaderos: No incluye - Se compra por separado

Área del balcón: No incluye

Terraza/jardín: No incluye

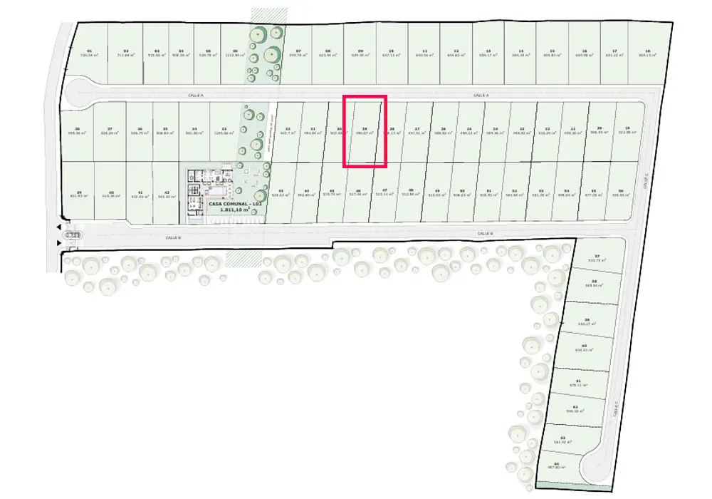
Terreno exclusivo de 1212.95m2

Precio: $221.882

Área: 1212.95 m²

Parqueaderos: No incluye - Se compra por separado

Área del balcón: No incluye

Terraza/jardín: No incluye

Terreno exclusivo de 645.54m2

Precio: $182.559

Área: 645.54 m²

Parqueaderos: No incluye - Se compra por separado

Área del balcón: No incluye

Terraza/jardín: No incluye

Terreno exclusivo de 656.17m2

Precio: $185.565

Área: 656.17 m²

Parqueaderos: No incluye - Se compra por separado

Área del balcón: No incluye

Terraza/jardín: No incluye

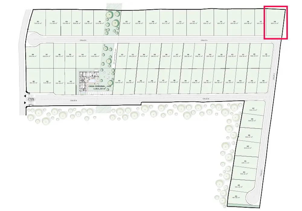
Terreno exclusivo de 828.15m2

Precio: $196.599

Área: 828.15 m²

Parqueaderos: No incluye - Se compra por separado

Área del balcón: No incluye

Terraza/jardín: No incluye

Terreno exclusivo de 509.46m2

Precio: $152.720

Área: 509.46 m²

Parqueaderos: No incluye - Se compra por separado

Área del balcón: No incluye

Terraza/jardín: No incluye

Terreno exclusivo de 497.51m2

Precio: $149.138

Área: 497.51 m²

Parqueaderos: No incluye - Se compra por separado

Área del balcón: No incluye

Terraza/jardín: No incluye

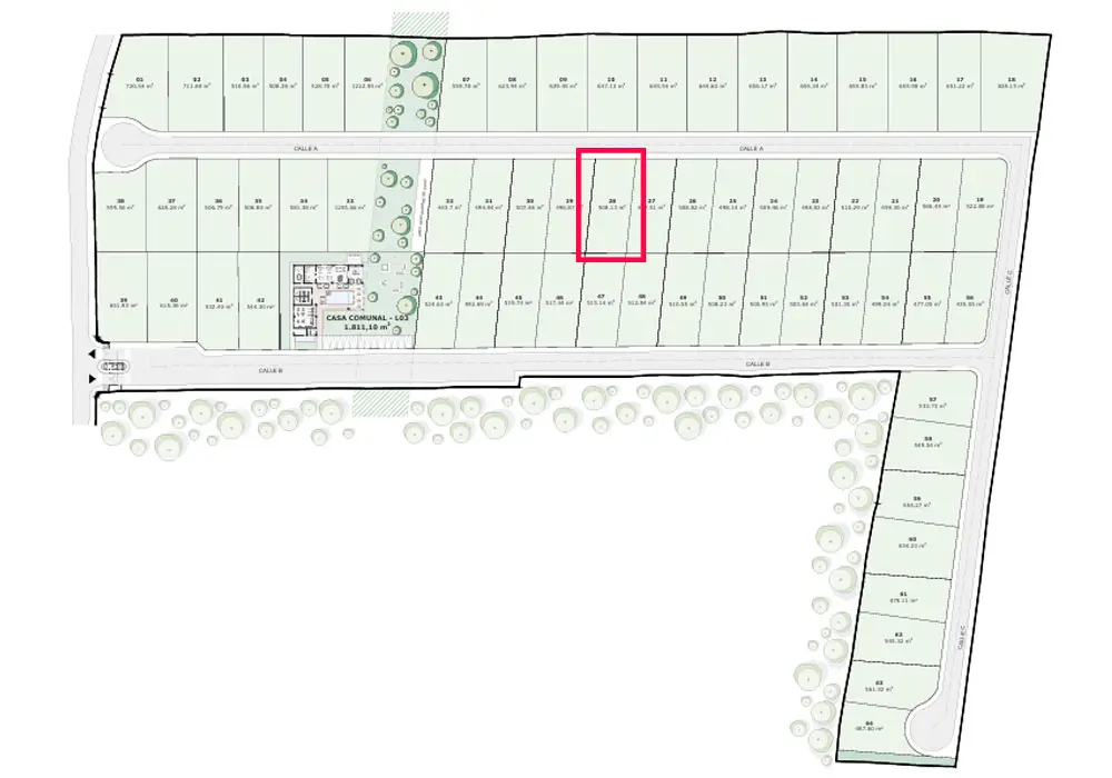
Terreno exclusivo de 508.13m2

Precio: $152.321

Área: 508.13 m²

Parqueaderos: No incluye - Se compra por separado

Área del balcón: No incluye

Terraza/jardín: No incluye

Terreno exclusivo de 494.84m2

Precio: $148.337

Área: 494.84 m²

Parqueaderos: No incluye - Se compra por separado

Área del balcón: No incluye

Terraza/jardín: No incluye

Terreno exclusivo de 443.70m2

Precio: $133.007

Área: 443.7 m²

Parqueaderos: No incluye - Se compra por separado

Área del balcón: No incluye

Terraza/jardín: No incluye

Terreno exclusivo de 1255.66m2

Precio: $259.038

Área: 1255.66 m²

Parqueaderos: No incluye - Se compra por separado

Área del balcón: No incluye

Terraza/jardín: No incluye

Terreno exclusivo de 506.80m2

Precio: $143.322

Área: 506.8 m²

Parqueaderos: No incluye - Se compra por separado

Área del balcón: No incluye

Terraza/jardín: No incluye

Terreno exclusivo de 595.56m2

Precio: $160.087

Área: 595.56 m²

Parqueaderos: No incluye - Se compra por separado

Área del balcón: No incluye

Terraza/jardín: No incluye

Terreno exclusivo de 515.14m2

Precio: $145.682

Área: 515.14 m²

Parqueaderos: No incluye - Se compra por separado

Área del balcón: No incluye

Terraza/jardín: No incluye

Terreno exclusivo de 510.55m2

Precio: $144.384

Área: 510.55 m²

Parqueaderos: No incluye - Se compra por separado

Área del balcón: No incluye

Terraza/jardín: No incluye

Terreno exclusivo de 503.64m2

Precio: $142.429

Área: 503.64 m²

Parqueaderos: No incluye - Se compra por separado

Área del balcón: No incluye

Terraza/jardín: No incluye

Terreno exclusivo de 623.94m2

Precio: $167.628

Área: 623.94 m²

Parqueaderos: No incluye - Se compra por separado

Área del balcón: No incluye

Terraza/jardín: No incluye

Terreno exclusivo de 639.45m2

Precio: $171.795

Área: 639.45 m²

Parqueaderos: No incluye - Se compra por separado

Área del balcón: No incluye

Terraza/jardín: No incluye

Terreno exclusivo de 644.60m2

Precio: $182.293

Área: 644.6 m²

Parqueaderos: No incluye - Se compra por separado

Área del balcón: No incluye

Terraza/jardín: No incluye

Terreno exclusivo de 655.98m2

Precio: $172.654

Área: 655.98 m²

Parqueaderos: No incluye - Se compra por separado

Área del balcón: No incluye

Terraza/jardín: No incluye

Terreno exclusivo de 499.30m2

Precio: $149.674

Área: 499.3 m²

Parqueaderos: No incluye - Se compra por separado

Área del balcón: No incluye

Terraza/jardín: No incluye

Terreno exclusivo de 498.82m2

Precio: $149.530

Área: 498.82 m²

Parqueaderos: No incluye - Se compra por separado

Área del balcón: No incluye

Terraza/jardín: No incluye

Terreno exclusivo de 498.14m2

Precio: $149.326

Área: 498.14 m²

Parqueaderos: No incluye - Se compra por separado

Área del balcón: No incluye

Terraza/jardín: No incluye

Terreno exclusivo de 496.87m2

Precio: $148.946

Área: 496.87 m²

Parqueaderos: No incluye - Se compra por separado

Área del balcón: No incluye

Terraza/jardín: No incluye

Terreno exclusivo de 507.46m2

Precio: $152.120

Área: 507.46 m²

Parqueaderos: No incluye - Se compra por separado

Área del balcón: No incluye

Terraza/jardín: No incluye

Terreno exclusivo de 581.38m2

Precio: $156.194

Área: 581.38 m²

Parqueaderos: No incluye - Se compra por separado

Área del balcón: No incluye

Terraza/jardín: No incluye

Terreno exclusivo de 651.93m2

Precio: $167.055

Área: 651.93 m²

Parqueaderos: No incluye - Se compra por separado

Área del balcón: No incluye

Terraza/jardín: No incluye

Terreno exclusivo de 532.40m2

Precio: $143.035

Área: 532.4 m²

Parqueaderos: No incluye - Se compra por separado

Área del balcón: No incluye

Terraza/jardín: No incluye

Terreno exclusivo de 505.95m2

Precio: $143.083

Área: 505.95 m²

Parqueaderos: No incluye - Se compra por separado

Área del balcón: No incluye

Terraza/jardín: No incluye

Terreno exclusivo de 477.05m2

Precio: $133.093

Área: 477.05 m²

Parqueaderos: No incluye - Se compra por separado

Área del balcón: No incluye

Terraza/jardín: No incluye

Terreno exclusivo de 554.27m2

Precio: $154.637

Área: 554.27 m²

Parqueaderos: No incluye - Se compra por separado

Área del balcón: No incluye

Terraza/jardín: No incluye

Terreno exclusivo de 479.11m2

Precio: $133.668

Área: 479.11 m²

Parqueaderos: No incluye - Se compra por separado

Área del balcón: No incluye

Terraza/jardín: No incluye

Terreno exclusivo de 561.32m2

Precio: $158.741

Área: 561.32 m²

Parqueaderos: No incluye - Se compra por separado

Área del balcón: No incluye

Terraza/jardín: No incluye

Terreno exclusivo de 487.60m2

Precio: $106.855

Área: 487.6 m²

Parqueaderos: No incluye - Se compra por separado

Área del balcón: No incluye

Terraza/jardín: No incluye

¿Te interesa esta propiedad?

Agenda una cita

Proyectos similares

desde

$235.000

Conjunto de casas independientes que se encuentra dentro de una urbanización privada, ofrece seguridad 24/7, garantizando tranquilidad y bienestar para toda la familia.

desde

$258.445

Haru Puembo, esta ubicado en una zona de gran plusvalía, tiene fácil acceso a las vías principales y su diseño es completamente personalizado.

desde

$127.224

Malvi es una urbanización, de lotes independientes, diseñado por arquitectos Europeos que cuentan con características modernas y elegantes.

¡Llámanos ahora!